Your Trusted Partner for Quality Designs
Your designs matter. Creating plans doesn’t have to be stressful or complicated. Whether you need to modify or create your floorplans, the experts at Blueprint Designs have you covered from start to finish.
Drafting serves as the fundamental thread connecting our services for the graphical representation of telecommunication, commercial, and residential domains.
What We Do
Our Services Encompass
Telecommunications, Commercial and Residential Designs
CONSULTING
We’ll hear your ideas, issues or goals for your business. We’ll discuss steps on strategies to guide us to achieve your business performance.
DESIGN
Drafting your ideas and implementing into a concept design, whether it be commercial, residential or in the telecom industry.
SYSTEMIZATION
In the Telecom Industry we can help organize your CAD files into a library system, whether it be client folders, blocks, or details.
TRAINING
We provide training for drafter employees on the new or modified CAD library within your company’s template. Our streamlined templates and CAD library enhance the design process, emphasizing quality and consistency as key identifiers for your business.
TELECOM
We design custom CAD blocks, details, or templates tailored to your clients’ or your own business requirements. We can offer additional drafting assistance to ensure your clients’ deadlines are met.
COMMERCIAL
When designing and planning commercial layouts, we prioritize not only functionality but also create clear and detailed designs that precisely address specific requirements.
RESIDENTIAL
Our expertise lies in consulting and designing layouts for every room in your home. Whether you’re considering a kitchen layout change or expanding a room, we’re here to bring your ideas to life.
TELECOM
We design custom CAD blocks, details, or templates tailored to your clients’ or your own business requirements. We can offer additional drafting assistance to ensure your clients’ deadlines are met.
COMMERCIAL
When designing and planning commercial layouts, we prioritize not only functionality but also create clear and detailed designs that precisely address specific requirements.
RESIDENTUAL
Our expertise lies in consulting and designing layouts for every room in your home. Whether you’re considering a kitchen layout change or expanding a room, we’re here to bring your ideas into life.
TELECOM INDUSTRY DESIGN
We recognize that meeting customer deadlines is as
crucial as maintaining work quality. The emphasis on
quality and consistency defines your business.
If you lack the resources or time to redesign templates
or create custom libraries for client specifications,
Blueprint Designs can assist and facilitate a smoother transition
BLOCKS AND DETAILS
Blocks are designed with a drop-down menu to view item in different views keeping the same layer design. Details are design to give information on a specific manufacturer equipment keeping the layers consistent
TEMPLATE DESIGN
Zoning/Construction drawing templates are designed to your style and county specifications. Each page not only should have a standard design, but each set should have the same standard layers.
CADD LIBRARY
CADD Library boasts the consistency of communicating the same language on each set of drawings. Library platform consist of blocks, and detail for each manufacturer equipment being utilized.
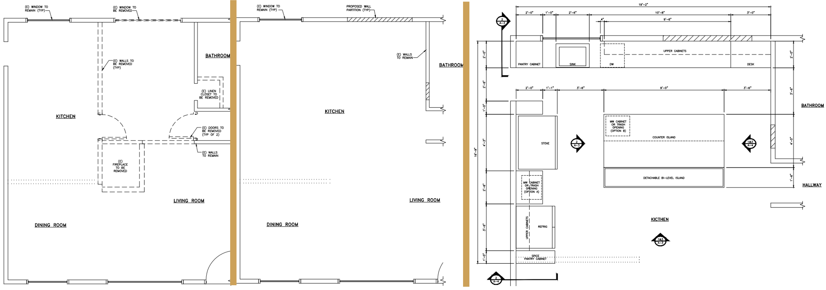
RESIDENTIAL DESIGN
At Blueprint Designs, we consult and design unique layouts for any room in your home. We’re committed to delivering an exceptional home design layout that meets your unique needs, preferences and specific requirements.
We take care in every aspect of our projects, from the initial consultation to the final design layout.
Before
After
COMMERCIAL DESIGN
When considering a property, it’s essential for tenants and buyers to be informed about the size and layout of the space. These factors are significant because they:
- Influence the property’s functionality and how well it will accommodate the tenant’s or buyer’s needs.
- Affect the property’s market value, as larger spaces or more efficient layouts can command higher prices.
- Determine the potential for future modifications or uses of the property.
For those listing properties, providing clear and detailed information about the size and layout, such as through professional floor plans, can greatly assist potential tenant and buyers in making informed decisions.

EVENT LAYOUT

BUSINESS FLOOR PLAN

WEDDING & CORPORATE EVENTS
Regardless of the size of your projects,
Blueprint Designs will help guide you to create your ideas into plans. It should be straight forward and stress-free. Whether it’s altering existing CAD designs or crafting new ones, our team is equipped to support you every step of the way.
“Blueprint Designs autographs their work with excellence.”
Testimonials
Happy Customer
Duis aute irure dolor in reprehender in voluptate velit esse cillum dolore fugiat nulla pariatur excepteur sintoa caecat cupidata proident...


